Quartier "An der Schanze", 1210 Wien

Mietbeginn: 01.10.2026

Hinweis zur Wohnungsvergabe!
Wir ersuchen derzeit, von Anfragen abzusehen, da die Vergabe unsererseits noch nicht begonnen hat. E-Mails werden nicht beantwortet.
Die Stadt Wien hat bereits mit der Vergabe begonnen. Die Vergabe durch unsere Genossenschaft startet jedoch erst ab August 2026.
Alle Interessenten erhalten rechtzeitig nähere Informationen zum weiteren Ablauf.

Anmeldungen für Wohnungen sind nicht mehr möglich.
Anmeldungen für andere Bereiche sind möglich (siehe unten).

Bauplatz H/1, 196 Wohnungen, davon:

130 geförderte Mietwohnungen
66 SMART-Wohungen mit Superförderung
1 Geschäftslokal, flexibel gestaltbar
3 Büro-/Ordination-/Lokalflächen, flexibel gestaltbar

  • Wohnungen für Alleinerziehende
  • Quartierswerkstatt für die Nachbarschaft
  • Kleinkinder-, Kinder- und Jugendspielplatz
  • Gemeinschaftliche Sonnen- und Ausblickterrassen

Fertigstellung: 08/2026

Übersicht Untergeschoß

Die Übersicht zur Anlage können Sie hier herunterladen.

Kontaktaufnahme

Frau Rebeka Kostic Tel.: 01 533 72 38
rebeka.kostic@aufbau.at Mobil: 0676 9119 782
Frau Rebeka Kostic
Tel.: 01 533 72 38
Mobil: 0676 9119 782
rebeka.kostic@aufbau.at

Anmeldungen

Für Anmeldungen bitte das Anmeldeformular herunterladen, ausfüllen und per Mail senden an: rebeka.kostic@aufbau.at
Anmeldungen sind nur für Lokale möglich.

Kleingewerbe

Plandarstellung
Büro Haus A 1b
Simone Veil Gasse 8/2
ca. 51 m²
Plandarstellung
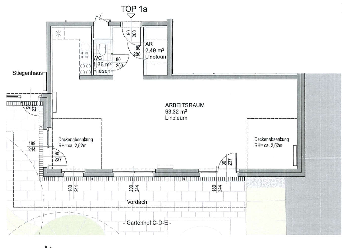
Büro Haus E 1a
Drygalskiweg 49/1
ca. 73 m²
Plandarstellung
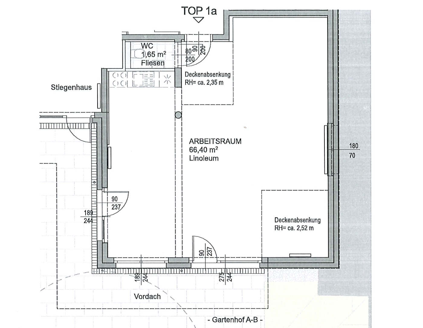
Büro Haus A 1a
Simone Veil Gasse 8/2
ca. 68 m²
Plandarstellung
Büro Haus B 1a
Leopoldauer-Haide Gasse 3/2
ca. 70 m²
Plandarstellung
Büro Haus C 1a
Drygalskiweg 49/2
ca. 67 m²

Werkzone

Plandarstellung
Werkstätten Haus I
Simone Veil Gasse 10
ca. 49-77 m²
Plandarstellung
Atelier Haus I
Simone Veil Gasse 10
ca. 50 m²

Lokale

Plandarstellung
Geschäftslokal
Simone Veil Gasse 10
ca. 177 m²
Plandarstellung
Büro-/Ordination-/Lokalfläche
Simone Veil Gasse 10
ca. 660 m²

AUFBAU
Gemeinnützige Bau-, Wohnungs- und Siedlungsgenossenschaft
registrierte Genossenschaft mit beschränkter Haftung

Tuchlauben 8/6.Stock, 1010 Wien

§ 7 (4b) Tochter
AUFBAUWERK
Bau-, Wohnungs- und Siedlungsges.m.b.H.

Tuchlauben 8/6.Stock, 1010 Wien
Tel.: 01 5339893, Fax: DW -9
e-Mail: office@aufbauwerk.at

Kontakt:

e-Mail: office@aufbau.at
Tel.: 01/533 72 38

Bürozeiten:
Mo - Do: 9:00-12:00
13:00-15:00
Fr: 9:00-12:00
⇒ Anfragen zu Bestands- und Neubauwohnungen in Vergabe

Immobilienverwaltung:

e-Mail: hv@aufbau.at
Tel.: 01/533 98 94

Bürozeiten:
Mo - Do: 9:00-12:00
13:00-15:00
Fr: 9:00-12:00
⇒ Bewohnerfragen und Mängelmeldung zur bestehenden Wohnung.

⇒ Notdienst laut Informationsbrett des jeweiligen Wohnhauses für dringende Schadensfälle an Feiertagen und Wochenenden.

Impressum

×

Mibag Tel.: 0800 500 808

×

Mibag Tel.: 0800 500 808